WEBからのお問い合わせ WEBフォーム
お電話からのお問い合わせ

06-6766-2914

9:00-18:00 (火・水曜定休)

Web会員登録 Recruit Site タカセグループ 採用サイト
お電話からのお問い合わせ

06-6766-2914

9:00-18:00 (火・水曜定休)

WEBフォームからのお問い合わせ

Recruit Site

タカセグループ 採用サイト

施工事例

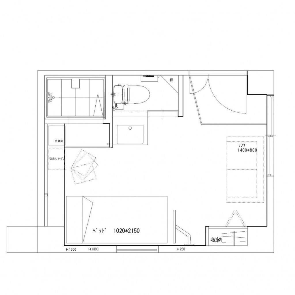
産婦人科の入院室改修

店舗

開院されて25年が経ち、お部屋のリニューアルをされました。

お風呂と洗面とトイレが一緒になったユニットバスがあったのですが、産後にお風呂には入らない事と跨ぎ高さは最小限のほうが良い事等々の改善を軸に、産後ホテルライクな気持ちの良い、落ち着いた空間で過ごしていただけるようにとのご依頼でした。

シャワールームとトイレを独立させて、洗面はドレッサーとしても使えるよう座って使えるようにしました。

ベッド周りには看護師さん、患者さんが使いやすい位置にコンセント・スイッチを配置し、腰壁にはキズに強いパネル貼りを採用しています。

他のお部屋には患者さんや生まれたての赤ちゃんがいらっしゃる環境での工事だったので、最大の配慮を払いましたが、看護師さんたちのご協力もあり無事に終える事が出来ました。

他のお部屋も順番にリニューアル予定ですが、次回は白を基調にしたラブリーな雰囲気のお部屋にしましょうか、など相談中です。


物件データ

物件
RC造 3階建て
面積
17m²
エリア
大阪市
間取り
築年数
平成6年
リフォーム費用
約450万円
一覧へ戻る

他のリフォーム事例

施工事例 シミュレーションゴルフ改修工事

お電話からのお問い合わせ

タカセ不動産 本社

06-6766-2914

9:00-18:00 (火・水曜日定休)

タップで電話をかける

WEBからのお問い合わせ

お返事に2日ほどいただく場合がございます
お急ぎの場合はお電話ください