WEBからのお問い合わせ WEBフォーム
お電話からのお問い合わせ

06-6766-2914

9:00-18:00 (火・水曜定休)

Web会員登録 Recruit Site タカセグループ 採用サイト
お電話からのお問い合わせ

06-6766-2914

9:00-18:00 (火・水曜定休)

WEBフォームからのお問い合わせ

Recruit Site

タカセグループ 採用サイト

施工事例

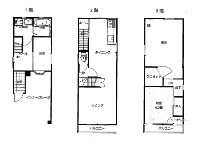
北欧テイストで明るく優しい3階建て

戸建

細長い敷地で3面が建物に囲まれてる為昼間でも薄暗かったので中央の部屋を奥の部屋と一つにしたり、間の壁を少なくしたり、内装は白を基調にし、光の反射で明るくするようにしました。

1階~2階の階段はリフォーム階段で既存の階段を化粧し、2階~3階の階段は少しですが緩やかに架け替えました。

階段段数を増やす為、トイレの前のスペースも階段に取り込んでいます。

物件データ

物件
中古戸建
面積
105m²
エリア
大阪市
間取り
3LDK
築年数
昭和62年
リフォーム費用
一覧へ戻る

他のリフォーム事例

施工事例 テラスハウス改修

お電話からのお問い合わせ

タカセ不動産 本社

06-6766-2914

9:00-18:00 (火・水曜日定休)

タップで電話をかける

WEBからのお問い合わせ

お返事に2日ほどいただく場合がございます
お急ぎの場合はお電話ください